政府信息公开
(县自然资源局)
耿马傣族佤族自治县自然资源局关于詹某兰项目《建设工程规划许可证》批前公示
日期:2025-08-28 16:38 来源:县自然资源局 浏览:1304次 字体:【
  • 图片1.png
  • 图片1.png

项目名称

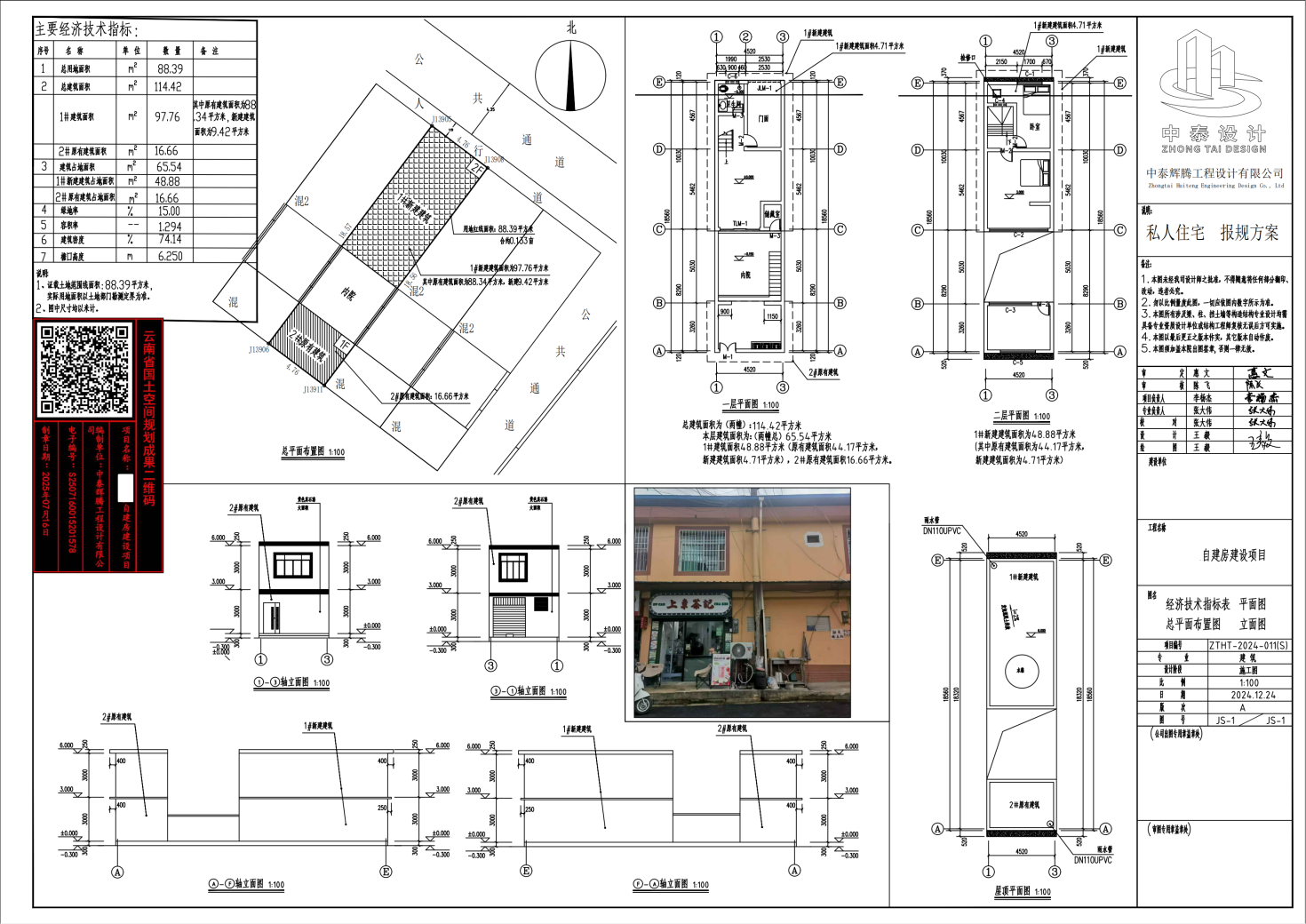
詹某兰自建房建筑项目

类    型

批前公示

公示类别

建设工程规划许可证

建设单位

詹某兰

用地位置

耿马县耿马耿马镇震新路医院公司宿舍区

 

建设内容

项目用地面积88.39㎡(0.13亩),总建筑面积114.42㎡(其中原有建筑面积为105.00㎡,扩建建筑面积为9.42㎡,扩建建筑属未批先建房屋,已进行处罚并缴纳处罚金),建筑总层数为二层,砖混结构,建筑总高度为6.25m,容积率为1.29,建筑密度为74.14%。

公示期限

7个工作日(2025年8月28日—2025年9月5日)

公示网址

https://www.yngm.gov.cn/zfxxgk_gmx/zrzyxx.html

联系电话

0883-3067730(因工作需要公开)

联系邮箱

lcgmgtjbgs@126.com(因工作需要公开)

 

说   明

1.意见发表时间或邮戳日不应超过公示期的最后一天24:00前,逾期则视为无效意见。

2.书面意见应注明真实联系人姓名、联系方式。

3.信件寄往:耿马县公园路63号耿马县自然资源局(请注明“规划公示”字样)。

附   件

建设工程项目公示稿


扫一扫在手机打开当前页面
分享: