政府信息公开
(县自然资源局)
耿马傣族佤族自治县自然资源局关于王某云自建房一建设项目 《建设工程规划许可证》批后公开
日期:2025-09-26 11:26 来源:县自然资源局 浏览:1293次 字体:【
  • 建设工程项目公示稿.png
  • 建设工程项目公示稿.png


项目名称

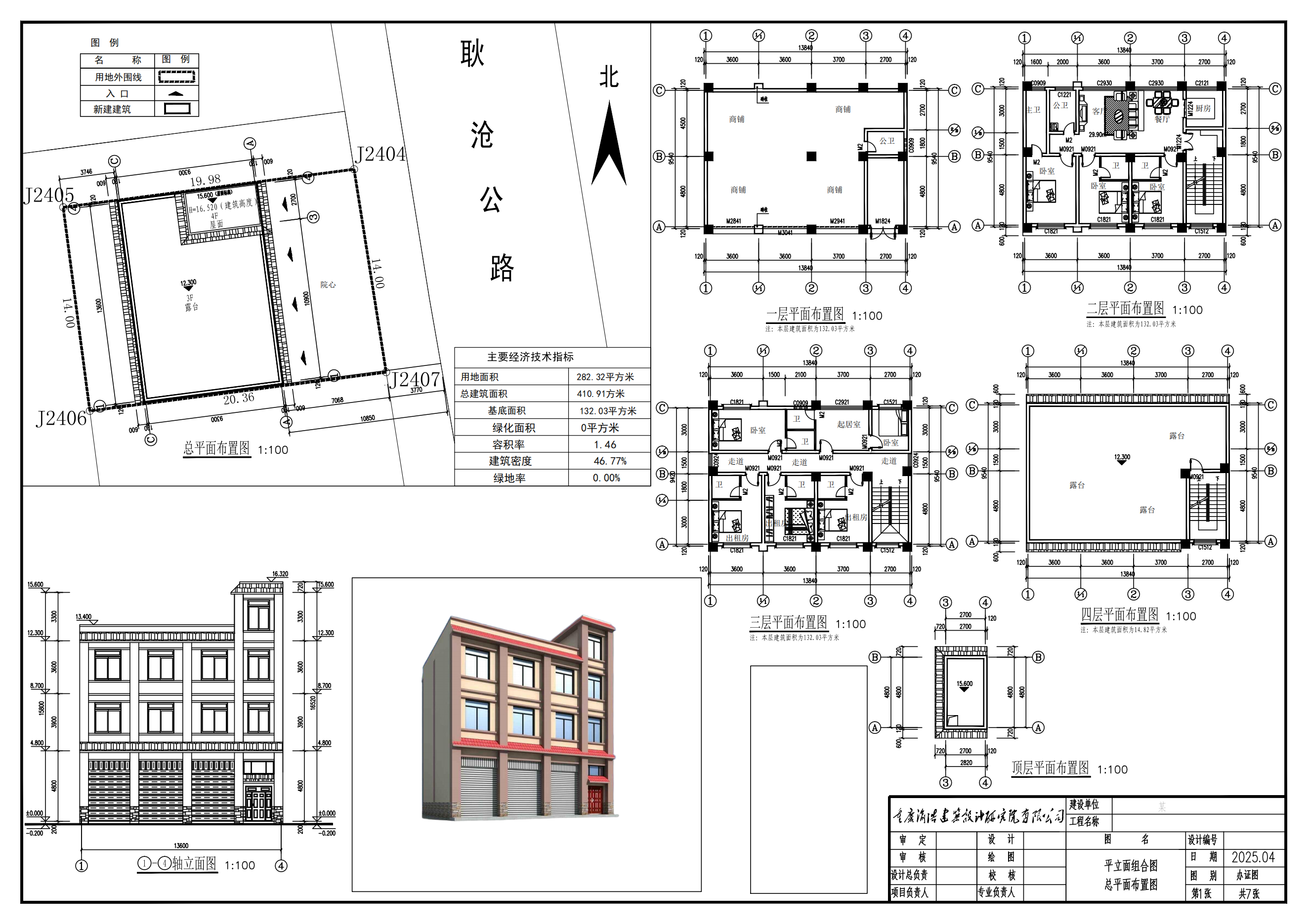
王某云自建房一建设项目

类型

批后公开

公示类别

建设工程规划许可证

发证编号

建字第耿马县202500073号

建设单位

王某云

用地位置

耿马县耿马镇景戈路与金旺路交叉口

建设内容

用地面积282.32㎡,在该用地新建1幢1-4层框架结构房屋,总建筑面积为410.91㎡,建筑总高度为16.00m。容积率为1.46,建筑密度为46.77%。

公示期限

1年(2025 年9月26日至2026年9月25日)

公示网址

https://www.yngm.gov.cn/zfxxgk_gmx/zrzyxx.html

联系电话

0883-3067730(因工作需要公开)

附件

建设工程项目公示稿

扫一扫在手机打开当前页面
分享: